МАКИЗ УРАЛ | хлебопекарное оборудование  
 
 
Москва: +7 (495) 668-12-19
Казань: +7 (919) 613-10-78
Саратов: +7 (8452) 24-99-85
Уфа: +7 (347) 246-58-62, 246-58-63
Астана: +7 (7172) 78-81-16
Алматы: +7 (727) 349-98-97
Краснодар: +7 (861) 203-39-03
Ростов-на-Дону: +7 (863) 303-64-55
ХЛЕБОПЕКАРНОЕ ОБОРУДОВАНИЕ
Миасс: +7 (3513) 53-00-22 (многоканальный)
Челябинск: +7 (351) 211-03-23 (многоканальный)
Екатеринбург: +7 (343) 287-96-67, 228-00-55
Пермь: +7 (342) 259-40-30, 259-40-29
Новосибирск: +7 (383) 227-90-47
Санкт-Петербург: +7 (812) 309-05-81
Красноярск: +7 (391) 291-10-27
Владивосток: +7 (423) 230-21-33
МАКИЗ УРАЛ
прайс на оборудование
наш адрес
оборудование
хлебопекарное оборудование
кондитерское оборудование
пищевое оборудование
мясное оборудование
упаковка хлеба
оборудование для фасовки муки
упаковочное оборудование
упаковка овощей и фруктов
Макаронное оборудование
оборудование для жарки семечек
запчасти к оборудованию
Оборудование в лизинг
Продажа оборудования в Казахстан

 
:::::

Шкафы расстойные

 :::::

Шкаф расстойный Г4-РШВ

Шкаф расстойный Г4-РШВ

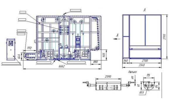
 Шкаф предназначен для окончательной расстойки батонообразных тестовых заготовок развесом 0,3 … 0,5 кг в комплекте с тоннельными печами площадью пода 16 … 30 м2.
 Время расстойки тестовых заготовок осуществляется изменением длины пути рабочей ветки конвейера.
 Регулирование скорости перемещения конвейера осуществляется частотным преобразователем.
 Система управления расстойным шкафом позволяет поддерживать заданную температуру и влажность в автоматическом режиме.
 Конструкция люлек позволяет механизировать процесс загрузки и выгрузки тестовых заготовок.
 Шкаф имеет цепной конвейер, на котором закреплены специальные люльки.
 Шкаф поставляется секциями в разобранном виде, легко монтируется в помещениях с соответствующими размерами.
 Панели теплоизолированы.
 Установлена система подсушки люлек и бактерицидной обработки тестовых заготовок.
 Шкаф расстойный поставляется вместе с посадчиком тестовых заготовок.

Технические характеристики

 Время расстойки, мин

40-50

 Количество люлек, шт

313

 Шаг цепи, мм

76,2

 Шаг укладки тестовых заготовок на под печи, мм

162,4

 Шаг подвески люлек, мм

152,4

 Размер люлек: желоб (длина; ширина; высота), мм

2090х125х85

 Ширина подвески люлек, мм

2344

 Количество тестовых заготовок в люльке, шт

6

 Шаг раскладки тестовых заготовок в люльке, мм

345±5

 Габаритные размеры, мм (длина; ширина с приводом; высота)

6652х3340х3945

 Масса, кг

6000


Оборудование ОАО «ШМЗ»

Печи тупиковые


ФТЛ
ХПФ12-C
ХПФ
ХПА

Печи тоннельные


ХПН
ПХ3С-25 и ПХС-50 ПХС-16 и ПХ4С-25
ПХС-16-01
ХПЯ-30
ХПЯ-25 и ХПЯ-50

Расстойно-печные агрегаты


РПА-12
РПА-15
РПА-20
РПА-30
РПА-10С и РПА-11С

Шкафы окончательной расстойки


Г4-РШВ
ХРП
ХРГ

Тестомесильные машины


МТМ-330-01
Запасные части
Оборудование для
кондитерской,
консервной,
макаронной,
сахарной и др.
промышленности

Прайс


 : : : : : : : : : : : : : : : 
© 2024 Copyright " Макиз Урал "
m@makizural.ru
 : : : : : : : : : : : : : : : 
Обращаем ваше внимание на то, что данный Интернет-сайт, носит исключительно информационный характер и ни при каких условиях не является публичной офертой, определяемой положениями Статьи 437 Гражданского кодекса Российской Федерации. Для получения подробной информации о технических характеристиках и стоимости оборудования, пожалуйста, обращайтесь к менеджерам по продажам Макиз-Урал.
Teamidea Group. Предлагаем уникальную экспертизу в области интеграции ИТ-решений и платформ, а также обеспечения миграции с ИС иностранных вендоров на отечественные.